咨詢熱線
13777594082


恭祝紹興中醫館裝修設計開工大吉
來源: 浙江國富裝飾 瀏覽人數: 1008次 更新時間: 2023-03-01
項目名稱:紹興中醫館
項目地址:浙江紹興越城區剡溪路
設計公司:浙江國富裝飾
施工公司:浙江國富裝飾
相關資質:設計乙級資質、施工貳級資質
公司介紹:
浙江國富裝飾設計工程有限公司成立于2008年,注冊資金5000萬,擁有國家住建部頒發設計乙級資質、施工貳級資質、建筑安全生產許可證。專注中醫館、中醫診所等辦公空間,策劃、設計、預算、施工、售后于一體的專業工裝公司
公司秉承“真誠、守信、創新、共贏”的企業經營理念,以客戶的需求為己任。通過十幾年的穩健發展,已服務5000+經典客戶,積累了豐富的設計和施工經驗,擁有高水平的設計、精湛的施工和完善的售后服務體系。
公司自成立以來,樹立了良好的企業形象,憑借多方面優勢,成為杭州消費者放心知名品牌單位,榮獲“全國信用AAA企業”、“杭州市信用優秀企業”和“質量AAA級信用單位”等榮譽稱號。
中醫館裝修開工現場圖






中醫館設計效果圖







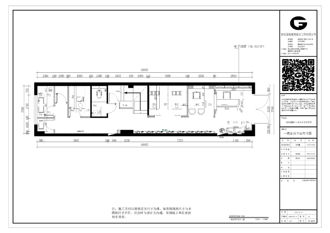
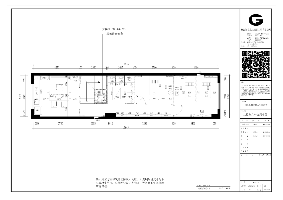
中醫館設計平面圖


21
2025-08
聯系信息
手 機:13777594082(微信同號)微信公眾號二維碼

長按二維碼識別關注
裝修咨詢微信二維碼

長按二維碼識別添加